14×13.8米低调奢华二层欧式住宅,挑空客厅3卧室100分
		2020-09-07 11:39:01来源:阅读:-
		素雅的二层欧式美宅,低调奢华兼顾时尚气息,若是能在村里盖一栋这样的别墅,定能成为十里八村受欢迎的田园之宅。
这套来自降序蒋先生的挑空客厅,看起来大气布局,让居住者感到倍有面子。
建筑面积:269㎡
占地面积:146㎡
建筑尺寸:14m×13.8m
建筑结构:框架结构
参考造价:45.7万元(不含室内装修费用)
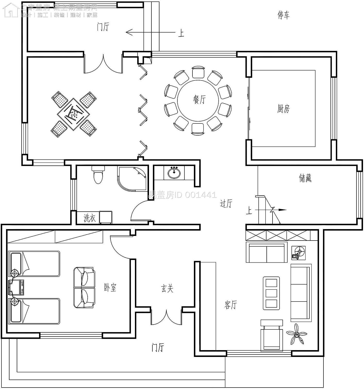
平面结构图
入户就是玄关,左右一个客厅,一个卧室,互不打扰的空间。
二层布局简单明了,一二层的通高客厅。
推荐阅读:东北信息港
			版权和免责申明
			
	辽宁热线所有文字、图片、视频、音频等资料均来自互联网,不代表本站赞同其观点,本站亦不为其版权负责。相关作品的原创性、文中陈述文字以及内容数据庞杂本站无法一一核实,如果您发现本网站上有侵犯您的合法权益的内容,请联系我们,本网站将立即予以删除!


 
        